Hilton Skybar
Mason UK designed and installed a jack-up floating floor under the large 'SkyBar' in the new Hilton Bournemouth. The late-night bar was directly above bedrooms.
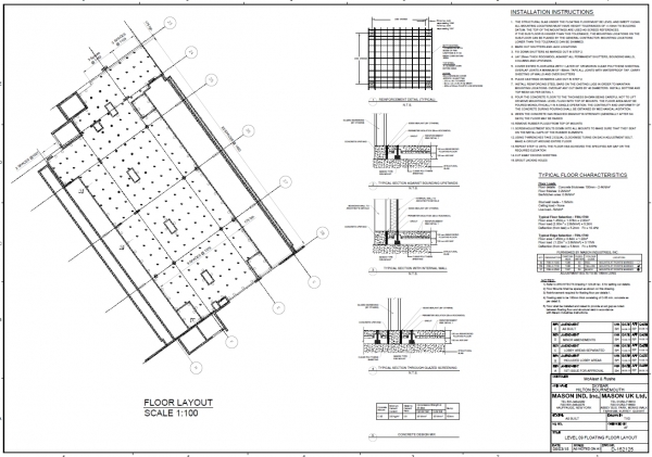
The SkyBar is on the eight level of the new hotel. The requirement was to provide a background of NR15 in the bedrooms directly beneath. Because the bar was to operate late into the night a concrete floating floor was specified with a defined frequency requirement.
The floating floor was designed to support everything on that level including bar and similar facilities. To achieve the necessary performance a jack-up floating concrete floor was required, using natural rubber isolators. The lifespan of this system is in excess of the building itself.
We designed and installed the entire system. The system was subject to testing following completion by the project acoustician and passed all requirements. To achieve this, correct design and implementation was very important as the floor was far from a regular shape or section.
Mason UK always takes full responsibility for the design and installation of our jack-up floors so we can guarantee the necessary attention to detail.
Products Related to Article
Concrete Floating Floors
Spring Floating Floors PDF
View Datasheet Rubber Floating Floors PDF
View Datasheet |






